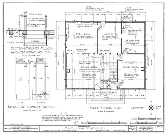
Historic American Building Survey: 

First Island Courthouse

drawing

HABS Drawing (click for fullsize)

<<

Description

>>