B1934–DRIVER DOOR LOCK/UNLOCK SWITCH CIRCUIT STUCK – TIPM





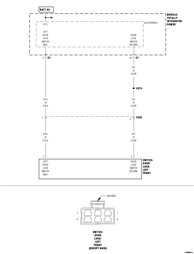
For a complete wiring diagram Refer to Section 8W.



Possible Causes
(G161) LEFT DOOR LOCK SWITCH MUX CIRCUIT PARTIAL SHORT TO GROUND
(G161) LEFT DOOR LOCK SWITCH MUX CIRCUIT SHORT TO THE (P37) DOOR LOCK SWITCH RETURN CIRCUIT
DOOR LOCK SWITCH SHORT TO GROUND
TOTALLY INTEGRATED POWER MODULE (TIPM)


Theory of Operation


This trouble code is for the Left Door Lock Switch for all vehicles including right hand drive.



Diagnostic Test

1. TEST FOR INTERMITTENT CONDITION

With the scan tool, record and erase DTC's
Operate the Left Door Lock Switch in all positions several times.
Cycle the ignition from on to off.
Turn the ignition on.
With the scan tool, read DTC's.

Does the scan tool display B1934–DRIVER DOOR LOCK/UNLOCK SWITCH CIRCUIT STUCK?

Yes


No

2. DOOR LOCK SWITCH SHORTED



With the scan tool, erase DTC's.
Disconnect the Left Door Lock Switch connector.
With the scan tool, read DTC's.

Does the scan tool display B1934–DRIVER DOOR LOCK/UNLOCK SWITCH CIRCUIT STUCK?

No


Yes

3. (G161) LEFT DOOR LOCK SWITCH MUX CIRCUIT PARTIAL SHORT TO GROUND



Turn the ignition off.
Disconnect the TIPM C7 connector.
Measure the resistance between ground and the (G161) Left Door Lock Switch Mux circuit.

Is the resistance below 10,000.0 ohms?

Yes


No

4. (G161) LEFT DOOR LOCK SWITCH MUX CIRCUIT SHORT TO THE (P37) DOOR LOCK SWITCH RETURN CIRCUIT



Measure the resistance between the (G161) Left Door Lock Switch Mux circuit and the (P37) Door Lock Switch Return circuit in the Door Lock Switch Connector.

Is the resistance below 10,000.0 ohms?

Yes


No