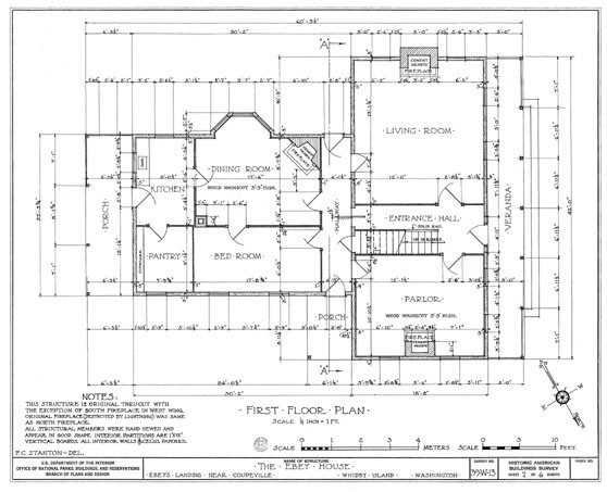
Historic American Building Survey: 

Ebey House (Ferry House)

photo1

HABS Drawing (click for fullsize)

<<

Description

>>