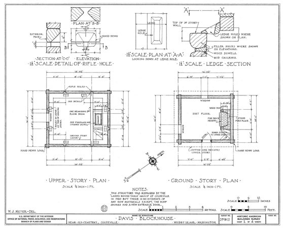
Historic American Building Survey: 

Davis Blockhouse

photo1

HABS Drawing (click for fullsize)

<<

Description

>>